Nazaj na seznam

Minimis 87

Etažnost: P, neto stanovanjska površina: 86,70 m2, objekt skupaj: 103,54 m2
Tip strehe: dvokapnica, naklon strehe: 45°

JUBHome hiša MINIMIS 87


Hiša je zasnovana za sodoben življenjski stil, ko zbiramo neprecenljive osebne izkušnje in doživetja raje, kot polnimo shrambe z rečmi.
Pritlična hiša nudi ravno prav prostora za udobno, prijetno bivanje ter z enostavno tlorisno zasnovo omogoča prilagajanje vsakokratnim potrebam in željam. Srce hiše je z vrtom povezan osrednji bivalni prostor, ki se dviga pod dvokapno streho in z lesenim ostrešjem daje vtis domačnosti in topline. Ob njem se v kompaktnem nizu vrstijo sekundarni prostori (vhod, kopalnica in spalnice), ki so z njim neposredno povezane. Razkošen osrednji bivalni prostor združuje kuhinjo, jedilnico in dnevno sobo, v njem pa se poljubno organizira tudi kotiček za branje, igralnico, dodatno sobo…


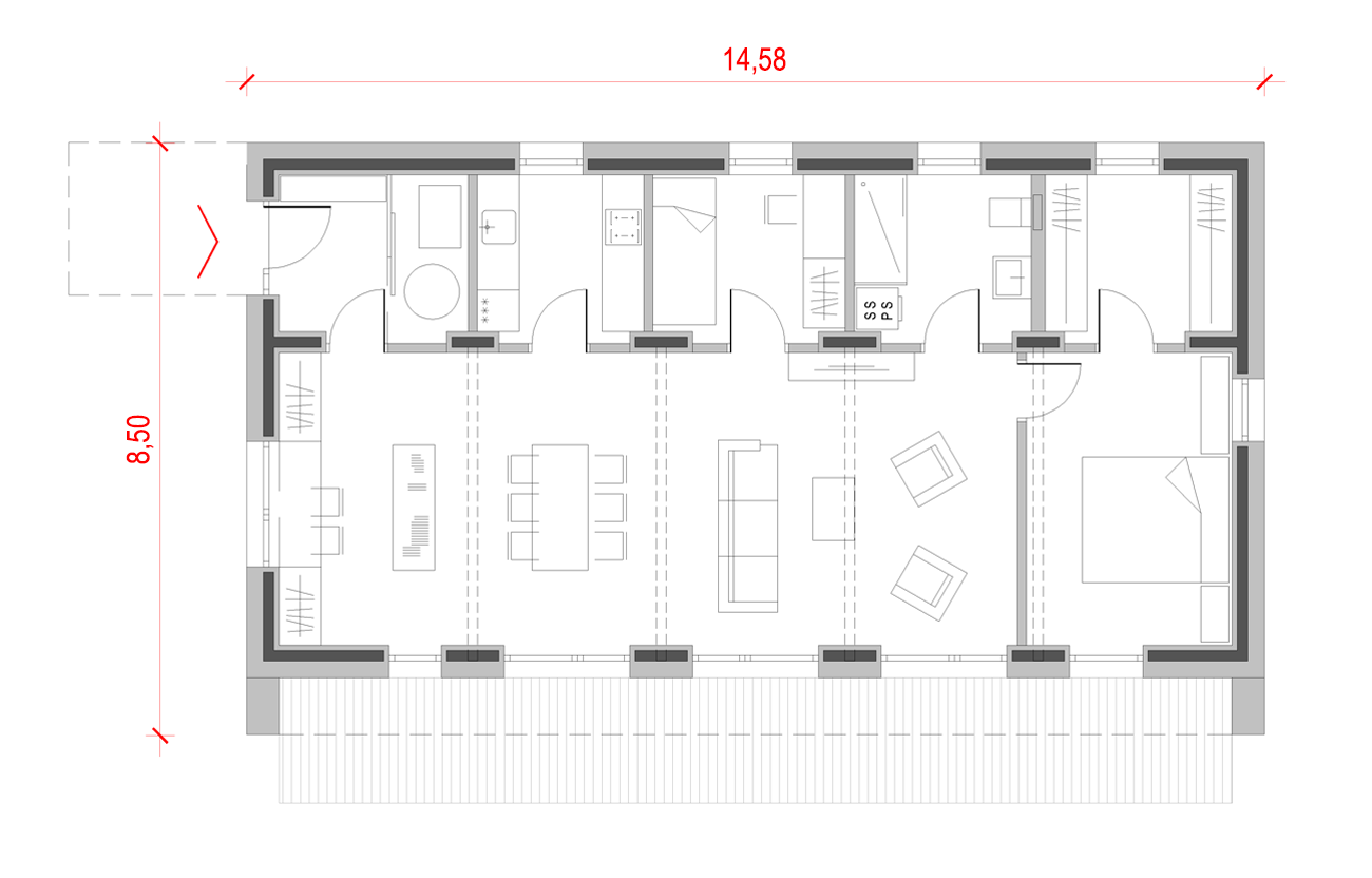
Tlorisi

/wp-content/uploads/2016/08/Minimis-87-P.png
1 Vetrolov s tehnično nišo 6,09 m2
2 Utility in WC 3,50 m2
3 Kopalnica 3,82 m2
4 Spalnica 9,87 m2
5 Otroška soba 6,09 m2
6 Bivalni prostor 57,33 m2
7 Pokrit vhod* 5,66 m2
8 Pokrita terasa* 11,18 m2
*površina ni upoštevana
Opcija 1 skupaj 86,70 m2
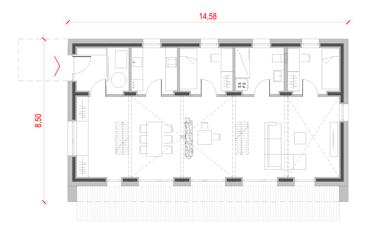
/wp-content/uploads/2017/10/Minimis-87-P-V2.png
Opcija 2 skupaj m2
/wp-content/uploads/2017/10/Minimis-87-P-V3.png
Opcija 3 skupaj m2
/wp-content/uploads/2017/10/Minimis-87-P-V4.png
Opcija 4 skupaj m2
i

Energijski paket

i

Elementi ali izvedba


Cena

  • 94.600z DDV*
  • 101.000z DDV*
  • 119.100z DDV*
  • 127.600z DDV*
  • 143.400z DDV*
  • 150.800z DDV*
  • 167.900z DDV*
  • 177.400z DDV*
  • 174.400z DDV*
  • 188.400z DDV*
  • 198.900z DDV*
  • 215.000z DDV*
  • 28.135z DDV*
  • 22.199z DDV*
  • 33.057z DDV*
  • 24.834z DDV*

*V ceni izvedbe je vključen 9,5% DDV, ki velja za stanovanjske hiše velikosti do 250 m2 stanovanjske površine.

Arhitektura

Studio Agregat - logo

Katalog in cenik

Prijavite se na JUBHome novice:

×